
Manor Series — Trigon Homes Floor PlanThe Amherst
A Manor Series home designed for families who value both elegance and everyday livability. Every detail is customizable.
Explore The Amherst

Walk Through
The Amherst
Click any camera icon on the floor plan to see photos from that room. Navigate between shots with the arrows.
Available Views

Design It Your Way
Toggle options in real time — add a fireplace, extend the great room, upgrade to a gourmet kitchen — and watch the floor plan update instantly.

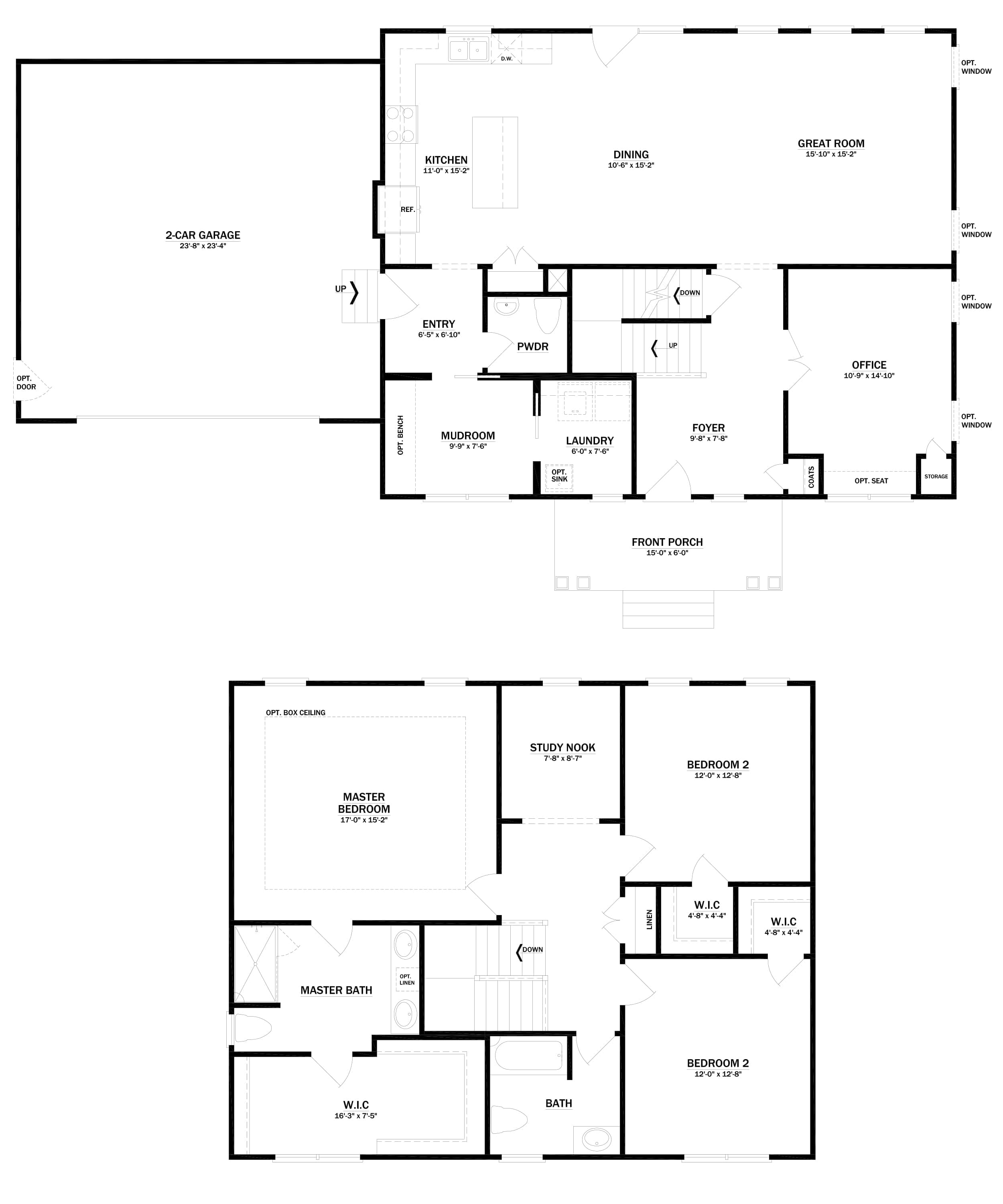
The Amherst
3 Bed · 2.5 Bath · 2,356 Sqft
Select Floor
Customize Options
Preview Feature
This interactive configurator demo shows how buyers will customize floor plans in real time. The full feature launches with all plan options and print/save capability.
What's Included
Home Highlights
- Elegant 9' first floor ceilings
- Kraftmaid maple cabinetry with 42" wall cabinets
- Mannington pre-finished hardwood foyers
- Luxury master bath with soaker tub & tiled shower
- Mohawk stain-resistant carpet with 6 lb. pad
- Poured concrete foundation with full basement
Energy Efficiency
- HERS Certified — score of 65
- R-38 cellulose ceiling insulation
- R-13 cellulose wall insulation
- Trane XR14 high-efficiency heat pumps
- Simonton Low-E argon-filled windows
- Insulated and sealed ductwork
- LED lighting throughout
Kitchen & Bath
- Professionally designed layout
- Kenmore Energy Star appliances
- Wilsonart laminate countertops
- 8" deep stainless steel double-bowl sink
- Moen chrome lever faucet with side spray
- Pre-wired for garbage disposal
Exterior & Landscape
- Mastic Dutch-lap vinyl siding
- CertainTeed 30-year architectural shingles
- Seamless aluminum gutters
- Jeld Wen insulated fiberglass front door
- Professionally designed landscape package
- Marantec garage door opener
Ready to Build The Amherst?
Every Trigon home is customizable. Let's discuss your vision, your lot, and how The Amherst can be tailored to your lifestyle.